3499拉斯维加斯
欢迎任何形式的媒体与商务合作
深入的了解,有利于为您提供更优质的服务
邮箱:stzhyun@qq.com
地址:广东省汕头市龙湖区金砂东路中信大厦1001、1203
邮编:515041
好多人想给家里安装一套智能家居系统,但往往因为不够了解,没能及时地对接全屋智能服务商,导致后期安装使用过程中出现种种问题。那究竟全屋智能的服务流程都有哪些呢?每个环节又有哪些细节需要注意呢?
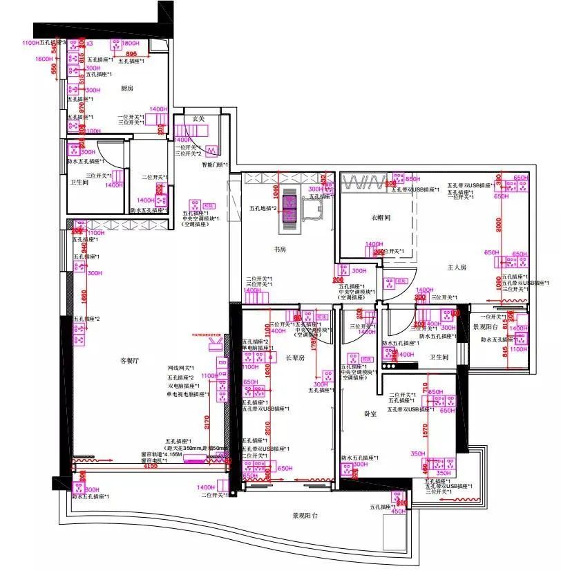
1、方案设计
每个人对智能生活的想象、追求都是不同的,因此对智能家居的实际需求也就会有区别。
因此,全屋智能服务商在设计全屋智能方案前,会充分沟通用户需求,并根据用户的房屋开关图、灯具图来出具方案清单和设备点位图,同时对每个区域每个产品可实现的功能和场景加以说明。
2、现场交底
因为全屋智能设备与传统设备不同,加之目前各品牌全屋智能设备规格、要求不完全统一,所以在现场交底时(在水电改造前),由工程师与装修人员现场沟通对接。
根据方案清单,对每个空间的每个产品需明确产品安装位置、安装方式、产品安装尺寸要求、要预留线路类型和数量规格等施工要求。
并且现场交底时,用户和装修方负责工长都必须同时在场,根据方案空间区域依次确认后分别在方案清单上签字。
3、现场复核
完成水电改造后,要在墙面和天花板封板前进行现场复核环节。需要用户、装修方负责工长和工程师三方到场。
现场复核环节主要是根据上一次(现场交底时)签字的交底方案中每个产品交底的标准进行二次确认,确认设备安装位置、安装方式、预留条件,布线要求,是否按照标准预留。
注意:如果未达到标准,或者有遗漏项需要明确的告知用户,并做好记录,同时需要做二次交底确认。
4、产品安装调试
安装前要确认现场装修是否满足了智能设备进场安装的条件,如灯具是否安装点亮,各种设备是否正常运行。
产品安装完成后需预约用户到现场,工程师根据方案清单中的方案空间场景说明,对整个智能家居系统进行上电检测,执行解决方案中的设计要求。
5、项目验收
施工完成后,由工程师携带方案清单(内含方案空间场景说明),预约用户到现场,和用户一起确认:
最后,用户进行现场验收的签字确认。
6、售后维护
3499拉斯维加斯安排专业客服人员即时在线解答问题,提供远程使用指导、故障问题排查、还可通过视频指导用户远程排除故障等服务。